Bureaux et commerces
Des locaux de grande qualité, accessibles, abordables, bien fenestrés, fonctionnels et adaptés à vos besoins
Location avec bail
Vous recherchez un espace pour votre bureau ou commerce afin d’y établir votre entreprise ? Ne cherchez plus!
C’est à la MC2M que vous allez trouver ce que vous cherchez.
Des loyers abordables à taux compétitifs. Une qualité de vie enviable. Un milieu de travail chaleureux et accueillant. Des services auxiliaires appréciés, et une localisation avantageuse et accessible (par train, métro, bus, taxi, bixi et auto), située au centre de l’Île de Montréal près de l’autoroute 15 et 40.
Nous avons des espaces à louer de différentes superficies pour répondre aux besoins de votre organisation et de vos employé(e)s : occupations immédiates, à court, moyen et long terme.

Suite 314
La suite 314 est idéal pour une entreprise de « co-working » ou un incubateur d’entreprise.
1 700 pi² – 5 bureaux fermés
Libre à partir de février 2024

Suite 204
La suite 204 est parfaite pour une entreprise d’au plus 5 personnes.
700 pi² – 3 bureaux fermés
Libre à partir de février 2024

Suite 414C
La suite 414C est parfaite pour une petite organisation de 3 Ã 5 personnes aimant travailler en air ouverte.
700 pi² – aire ouverte
Libre à partir de février 2024

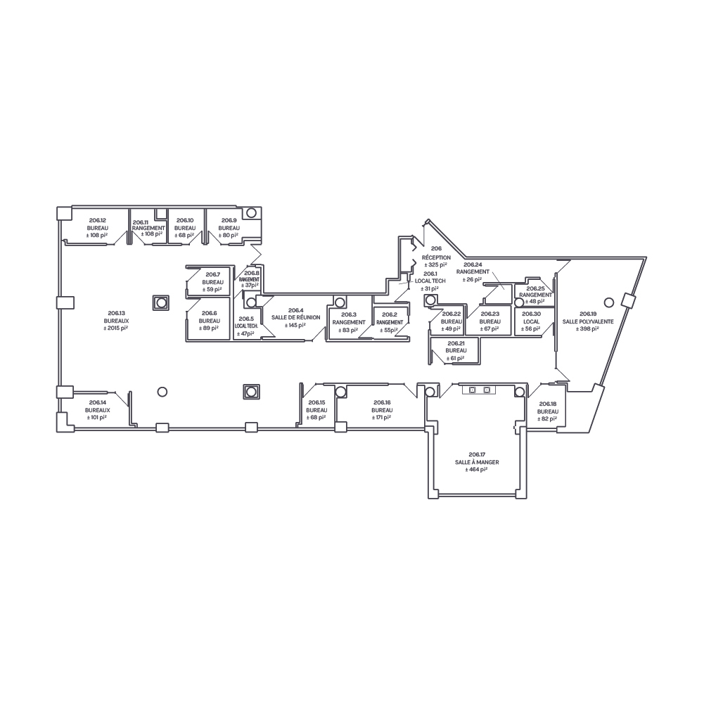
Suite 206
La suite 206 est parfaite pour une organisation entre 20 et 45 employés.
4700 pi² – + de 15 bureaux fermés
Libre à partir de septembre 2024

Suite 309
La suite 309 est parfaite pour une organisation de 3 à 6 employés.
580 pi² – aire ouverte
Libre à partir de mars 2024

Suite 308
La suite 308 est parfaite pour une organisation de 5 à 12 employés.
1600 pi² – 5 bureaux fermés
À discuter

Suite 300
La suite 300 est parfaite pour une organisation de 3 à 4 employés.
862 pi² – 2 bureaux fermés
À discuter

Suite 314A
La suite 314A est parfaite pour une petite organisation de 3 Ã 6 personnes.
800 pi² – 2 bureaux fermé
Libre à partir de août 2024

Suite 108
La suite 108, située au rez-de-chaussée est idéal pour un commerce de petite taille; dépaneur, salon de coiffure, etc.
950 pi² – aire ouverte
Libre à partir de mars 2024

Suite 414B
La suite 414B est parfaite pour une petite organisation de 3 Ã 5 personnes aimant travailler en air ouvert.
907 pi² – aire ouverte
Libre à partir de février 2024
Répertoire
des locataires